Ninoslav Kučan - retrospektiva arhitektonskog opusa
  Uvodna riječ O izložbi Životopis Foto galerija Impressum

IZLOŽBA

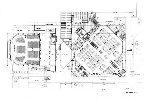
Radničko sveučilište u Zagrebu

Radničko sveučilište u ZagrebuSredinom pedesetih u punom je zamahu izgradnja Ulice proleterskih brigada u Zagrebu (današnja Vukovarska ulica), najzamašnijeg urbanističkog pothvata u Hrvatskoj toga doba. Radi se zapravo o cijeloj četvrti "između pruge i Save", koja je zamišljena već prije rata, mnogo prije nego Zagreb počinje seliti preko Save.

Uz institucije vlasti i uprave, među prvim važnim institucijama u koncepciji socijalističkog društva trebalo je biti "radničko sveučilište" kojemu je prvenstvena zadaća da odrasle i već zaposlene radnike osposobi za rad na složenijim poslovima.

Radničko sveučilište je kao institucija obuhvaćalo stotine profesora i vanjskih suradnika (u to vrijeme oko 340!) i svake godine obrazovalo nekoliko tisuća radnika koji su na seminarima stjecali raznovrsna stručna znanja.

Radničko sveučilište u ZagrebuOd novoga Doma Radničkog sveučilišta, za koji je 1955. objavljen natječaj, očekivalo se da obuhvati raznovrsne sadržaje, uz obrazovne (učionice i knjižnice), pored ostalog i veliku i malu dvoranu za kulturne programe i filmske projekcije.

Ninoslav Kučan i Radovan Nikšić osvojili su prvu nagradu na natječaju, te su zajedno izveli i projekt Radničkog sveučilišta (nazvano kasnije imenom političara Moše Pijade). Zgrada je dovršena 1961. a o njenoj tadašnjoj važnosti govori činjenica da ju je osobno otvorio predsjednik Tito. Iste su godine autori Radničkog sveučilišta nagrađeni Nagradom Grada Zagreba - Ninoslav Kučan za projekt, Radovan Nikšić za projekt i izvedbu, a Bernardo Bernardi za opremu interijera.

KUČAN O RADNIČKOM SVEUČILIŠTU

Radničko sveučilište u ZagrebuKučan mnogo kasnije tvrdi da on i Nikšić nikad nisu Radničko sveučilište zamišljali kao mjesto "gdje će ljudi u cokulama dolaziti po naknadno obrazovanje. vjerovali smo da taj objekt nikada neće završiti kao svaštarska obrazovaonica.Koncipirali smo i izveli prostor koji može svojom fleksibilnošću primiti u sebe sadržaje kulturološki mnogo značajnije." (1994.)

ANTOLOGIJSKO DJELO HRVATSKE ARHITEKTUREANTOLOGIJSKO DJELO HRVATSKE ARHITEKTURE

Zgrada Radničkog sveučilišta (danas Pučko otvoreno učilište) postala je gotovo slavna kao najbolji primjer arhitekture svoga doba:

"Ako se može reći da postoje karizmatične građevine, onda je jedna od takvih zgrada Pučkog otvorenog učilišta. ona je čvorište najviših dometa zagrebačke moderne arhitekture javnih sadržaja. ostala je nezaobilaznim mjestom atlasa hrvatske arhitekture, svakog najsažetijeg pregleda. Nametnula se kao tijelo nove plastike u ulici u nastajanju i već pedesetak godina zadržava svoju mladost."

Zdenko Tonković, Radovan Nikšić, Vitalnost moderniteta /katalog/, Hrvatski muzej arhitekture Zagreb 2005.


Paviljon na Zagrebačkom velesajmuPaviljon na Zagrebačkom velesajmu

Zajedno s Aleksandrom Dragomanovićem 1958. projektira i izvodi zapažen stakleno-čelični paviljon za izložbu Porodica i domaćinstvo na Zagrebačkom velesajmu, za kojega se govorilo da je nastao pod utjecajem američke arhitekture. Sajamski paviljoni omiljela su tema tih godina (iste je godine izgrađen i onaj Richterov, jako nalik ovome, na Svjetskoj izložbi u Bruxellesu). Kučanov i Dragomanovićev Paviljon bio je zapažen i nagrađen.


Modna kuća

Modna kućaNakon izložbe Porodica i domaćinstvo (1958.), paviljon je preseljen je na prazno mjesto srušene sinagoge u Praškoj ulici u Zagrebu i postao Modna kuća - zapravo prodavaonica odjeće, naročito zapažena među susjednim masivnim zgradama. Paviljon je kasnije stradao u požaru i njegovo je mjesto do danas prazno.

Kučan i Dragomanović predlagali su izgradnju slične ali neizvedene konstrukcije pokraj zagrebačkoga Glavnog kolodvora.


Palača pravde

Palača pravdeNakon pobjede na natječaju za Zgradu pravosuđa i sudova 1961., nazvanu Palača pravde, samostalno je izradio izvedbene projekte za zgradu koja se gradila do kraja desetljeća i nikad nije dovršena u predviđenom obliku. Kao i susjedna, također nikad dovršena Gradska vijećnica (autor Kazimir Ostrogović), izvorno je koncipirana trodijelno, s još dva niža stražnja krila, zapravo gotovo odvojena bloka, spojena pasažima s glavnom zgradom. Jedno je krilo (blok) trebalo biti namijenjeno građanima ("šalter sala"), a drugo pravosudnoj upravi.

Netom dovršena Palača pravde osvojila je nagradu Zagrebačkog salona za arhitekturu 1970.

Nagradu je podijelila sa suvremenije koncipiranim radom mladih arhitekata (Franićem i Golijaninom). Zbog očite razlike u pristupu arhitekturi nagrađenih radova kritika je odluku žirija Salona objasnila voljom za održavanjem ravnoteže u valorizaciji onoga što je povijesno već dovršeno i koncepcija koje tek dolaze.

Kao nesporna vrijednost Palače proglašeni su "strogo profinjeno tretiran volumen" zgrade i njena urbanistička uloga "definiranja" toga dijela Ulice proleterskih brigada, prije izgradnje Koncertne dvorane.

Konačno izgrađena, Palače pravde zaokružuje zrelo razdoblje zagrebačke moderne arhitekture.

Interijeri Kučanove Palače pravde (dovršene 1970.) mogli bi začuditi posjetitelja naviklog na tradicionalan sudski običaj "utjerivanja straha" onima koji se zateknu pred strogim licem pravde. Oblikovanje unutrašnjosti ponukalo ga je na pomisao da na neki način "demokratizira" suđenje - da uređenje dvorana bude nepretenciozno i da sudac i porotnici ne budu uzdignuti u odnosu na optužene i auditorij sudnice.


Vulkanov
neboder u Rijeci

Vulkanov neboder u RijeciNeboder je jedna od ključnih oblikovnih tema moderne arhitekture, poznata od kraja XIX. stoljeća, no naročito popularna sredinom XX. stoljeća. Kučan s grupom autora sudjeluje i na natječaju za Zagrebački neboder - za kojega upravo njegova grupa ne predlaže "pravi" toranj (1954.), kao ni za zgradu Vjesnika (1956.).

Visoke je nebodere razrađivao tek u kasnijim natječajnim prijedlozima, poput onoga za "tipske stambene tornjeve" i za "stambene tornjeve u Rijeci" (oba projekta s Dragomanovićem i oba prvonagrađena, 1960.), Vulkanov neboder na Grčevu, u istočnom dijelu Rijeke (1972.) s osamdeset stanova, podosta je osebujan i izražajan. Iako je rješenje s efektno izvedenom "visinskom razlikom" pojedinih dijelova zgrade odavno poznato, ipak nije prečesto korišteno a ovaj je toranj svakako najizrazitiji tih godina u Rijeci.


Telegrafsko-telefonski centar u Puli

Telegrafsko-telefonski centar u PuliTelegrafsko-telefonski centar u Puli (glavni Kučanov suradnik je Vjekoslav Antolović, 1974.), među prvima i jedan od najzapaženijih u nizu projektiranih i mahom realiziranih (s pokojom iznimkom, poput Osijeka). Ovi su objekti bili prostorno vrlo jednostavni, služili su za smještaj postrojenja - komunikacijskih centrala. Kako za funkcioniranje postrojenja nije bilo potrebno nikakvo osoblje nego samo povremeni nadzor, nije bilo nikakvih drugih prostornih zahtjeva.

Budući da je TT centar u Puli smješten u najstrožem centru, nasuprot historicističkoj zgradi austrougarskoga časničkog Mornaričkog kasina, konzervatori su postavili stroge uvjete u vezi s vanjskim izgledom jer su, unatoč modernističkoj posvemašnjoj neosjetljivosti za arhitektonsku baštinu, sedamdesetih jedna od glavnih tema postale "interpolacije".

TT centar u Puli izveden je kao prigradnja u strogo zadanim gabaritima, koja s ranije izgrađenim objektom čini trokutni otok. A "nevidljiva" neožbukana betonska pročelja s malobrojnim otvorima, presvučena su "prefabriciranim" rasterom s velikim zatamnjenim staklenim stijenama.


Telegrafsko-telefonski centar na Trsatu

Telegrafsko-telefonski centar na TrsatuTelegrafsko-telefonski centar na Trsatu (1976.) izgrađen je nakon najvećeg Kučanova centra na Kozali (u Rijeci, 1974.-75.). Podignut je za potrebe istočnog dijela grada, gotovo skriven i nevidljiv, za razliku od vrlo velikog, izduljenog i visokog centra na Kozali.

Sloboda oblikovanja na Trsatu omogućila je izgradnju objekta jednostavne kompaktne mase, koji je izvana strukturiran gotovo skulptorski izraženim plasticitetom, no prije svega u skladu s Kučanovim nastojanjima da "industrijalizira" arhitekturu - i u konstruktivnom i u estetskom smislu. Uvjeren da zgrade treba graditi "suhom" montažom, izrazito se protivio "lijepljenju blata" na pročeljima kuća.


Počeci - prvi projekti

Počeci - prvi projektiVeć u vrijeme studentskih dana Kučan surađuje na brojnim projektima sa svojim profesorima Zdenkom Strižićem (objekti na Plitvicama), Vladimirom Turinom (Sportski centar s bazenima na Delti u Rijeci 1949.). Već prije diplome radi pokoji (neostvareni) autorski projekt, kao i zajedno s kolegama (Jovičić, Kolonić, Seifert).

Kučan diplomira početkom 1951. a uskoro počinje raditi u birou Antuna Ulricha, te mu postaje i asistent na Arhitektonskom odjelu Tehničkog fakulteta u Skopju (1951). S Ulrichom sudjeluje na brojnim natječajima za škole, medicinske ustanove, a zajedno projektiraju i izvedenu stambenu zgradu Jugolinije i Doma pomoraca u Rijeci (1953.).


Radovi i natječaji

Radovi i natječajiNa natječaju za bolnicu u Petrinji (nije izvedena), 1955., osvaja prvu nagradu no posebna je cjelina niz radova ostvarenih samostalno ili u grupi autora za ključne zgrade u Zagrebu polovicom pedesetih godina.

Ulica proleterskih brigada (današnja Vukovarska) trebala je postati glavna ulica novog - "socijalističkog" - Zagreba i simbol uspjeha "socijalističke izgradnje" u sprezi s modernim urbanizmom i arhitekturom. U toj ulici zamišljene su, osim stambenih, i sve vitalne gradske funkcije - političke, kulturne, obrazovne, trgovačke i poslovne - gradska vijećnica, koncertna dvorana, zgrada pravosuđa, "radničko sveučilište" s dvoranom za kulturne programe, fakulteti, kao i robna kuća s kinom.

Svojevrsni je kuriozitet da je na gotovo svim natječajima, sam ili s grupom autora, sudjelovao i Kučan - a ostvarene su mu neke od kapitalnih zgrada - Radničko sveučilište (s Radovanom Nikšićem) i kasnije Palača pravosuđa.


Novinska kuća u Sarajevu i Bolnica u Karlovcu

Novinska kuća u SarajevuOd 1953. pa do 1965. Kučan sudjeluje na brojnim natječajima u zemlji i inozemstvu, izrađujući obično najmanje po pet natječajnih radova godišnje - za škole, bolnice, novinsko-izdavačke kuće, nebodere i stambene zgrade, i često osvaja prve ili druge nagrade.

Početkom šezdesetih, u vrijeme najvećih uspjeha, dovršenja izgradnje Radničkog sveučilišta (1961.) i pobjede na natječaju za Palaču pravde (1961.), Kučan sudjeluje na više od desetak natječaja i postiže dobre plasmane.

U to se vrijeme, sam ili zajedno s kolegama (najčešće s Dragomanovićem), okušava na više javnih i pozivnih natječaja u zemlji i inozemstvu. Pored ostalih, za objekt na Glavnom kolodvoru u Zagrebu (1960.), za više tipskih stambenih zgrada i nebodera (1960.), za Dom omladine u Beogradu (1960.), za robnu kuću s kinematografom u Zagrebu (1960.), za hotel u Opatiji (1960.), za dogradnju bolnice u Subotici (1961.), za zgradu suda u Subotici (1961.) i za koncertnu dvoranu u Augsburgu u Njemačkoj.

Bolnica u KarlovcuMeđu tim su prijedlozima zanimljiva dva veličinom i koncepcijom podosta ambiciozna projekta, za Medicinski centar na Švarči u Karlovcu (1961.), predviđen za 900 kreveta i za poslovni gradski hotel, te štampariju i redakciju Oslobođenja u Sarajevu (zajedno s Ladinekom, 1961.). S obje se teme već okušao na ranijim natječajima, te osvojio nagrade i prijedlogom projekta bolnice u Petrinji (1955.) i projektom za Vjesnikovu zgradu u Zagrebu (1956.). Arhitektonski pristup se u tih nekoliko godina nije bitno izmijenio. Sadržaj i veličina bolnice u Karlovcu, osim podosta "razvedene" glavne zgrade s unutrašnjim dvorištima, ponukala je i prijedlog izgradnje niza odvojenih bolničkih paviljona, a sarajevski projekt razvijen je u tri naglašeno "staklena" uzajamno povezana bloka uobičajenih oblika: toranj, izdužena viša zgrada i četvrtasta niža zgrada.


Spomenik žrtvama rata u Dachau

Spomenik žrtvama rata u DachauZajedno s kiparom Dušanom Džamonjom grupa arhitekata (Bernardi, Dragomanović, Kučan i Nikšić) sudjeluje na natječaju za spomenik žrtvama logora u Jajincima (1957.) kod Beograda i osvaja treću nagradu. Džamonja i Kučan sljedećih godina zajedno sudjeluju na velikim međunarodnim natječajima za spomenike žrtvama koncentracijskih logora u Auschwitzu (1958.) i Dachau (1959.).

Prijedlogom spomenika u Dachau Kučan i Džamonja postižu velik uspjeh - osvajaju jednu od šest ravnopravnih prvih nagrada. Spomenik je projektiran na ulazu u logor, pred samim logoraškim barakama, a trebao je biti okružen hramovima raznih vjera - crkvama i sinagogom. Sam središnji blok spomenika - jednostavna, visoka i simbolički "uneravnotežena" skulpturalno-arhitektonska građevina moćno je središte spomeničkoga kompleksa do kojega vodi aleja čempresa. Prostorna je organizacija strogo ortogonalna, tako da je središnja skulpturalna građevina, nazvana "napuštena katedrala", naglašeno dojmljiva.


Spomenik u Kamenskom

Spomenik u KamenskomPrvotna suradnja na natječaju za spomenik žrtvama logora u Jajincima (Beograd), kao i ambiciozno koautorstvo na natječajima za spomenike u Auschwitzu i Dachau, prometnula se u ambiciju samostalnog ostvarenja spomenika.

Nasuprot strogoj organizaciji spomeničkoga kompleksa u Dachau, Kučanov samostalni projekt za spomenik revoluciji i narodnom heroju Nikoli Demonji u Kamenskom (1960.) posve je drugačiji. Zamišljen je na neravnom terenu, sa središnjom skulpturalnom okomicom i slikovito razbacanim, nagnutim "stećcima" unutar zida koji okružuje nepravilnu parcelu spomeničkog terena.


Telegrafsko-telefonski centar na Kozali u RijeciTelegrafsko-telefonski centar na Kozali u Rijeci

Ova velika građevina na osami gradskoga predgrađa i u blizini groblja nije morala voditi računa o uklapanju u ambijent. Kučan je smatrao da će nakon izgradnje nove ceste (zaobilaznice) ogromni blok "međunarodnog telegrafsko-telefonskog centra" na Kozali u Rijeci (1974.-1975.) biti jedan od bitnih znakova u prostoru - "prvi gradski arhitektonski signal" - na sjeveroistočnom, za Rijeku najvažnijem ulazu u grad.

Jedan od najranijih Kučanovih objekata ove vrste, kao i većinu ostalih, karakteriziraju malobrojni i uski otvori na pročelju. S obzirom na automatizaciju tehnike, prvenstveno telefonske centrale, velika postrojenja trebala su mnogo prostora, ali ne i mnogo svjetla. Zato je pročelje dinamizirano plastično izraženom dekorativnom strukturom.


Robna kuća Ri

Robna kuća RiNakon povratka iz Njemačke i dolaska u Rijeku (1969.) Kučan se zapošljava u Rijekaprojektu (i tu ostaje sve do odlaska u mirovinu). Jedna mu je od prvih velikih zadaća izgradnja velike robne kuće, po narudžbi udruženih riječkih trgovačkih poduzeća. Na natječaju 1970. osvaja prvu nagradu i dobiva izvedbu (zajedno s Borisom Babićem i suprugom Vjerom Kučan).

Za Robnu kuću Ri (isprva - Rijeka) govorilo se da je "jedna od najvećih u Jugoslaviji". Prethodna urbanistička odluka, mimo Kučanove volje i mogućnosti izbora, omogućila je da robna kuća premosti najprometniju ulicu u strogom centru i poveže dva nasuprotna bloka između Korza i luke.

Problem interpolacije, uklapanja suvremene gradnje u stara tkiva, Kučan rješava vizualnim povezivanjem s industrijskom baštinom luke i obližnjih industrijskih pogona, smatrajući da susjedne historicističke zgrade, koje okružuju robnu kuću, nisu glavna vrijednost ambijenta.

Zanimanje za industrijsku baštinu u skladu je s Kučanovim nazorima o suvremenoj arhitekturi kao sklopu industrijskih elemenata - sustavu po kojem se razlikuje od tradicije i koji joj omogućuje vlastitu i primjerenu estetiku.

Robna je kuća Ri među svim Kučanovim zgradama imala najemotivniju recepciju publike. Na dan otvorenja (1974.) nagrnulo je 30 000 posjetitelja. Jedni su je oduševljeno hvalili, druge je smetao industrijski izgled (uspoređivali su je s kontejnerom), a treće je zanimalo hoće li se arhitekti zbog toga promašaja naprosto - ubiti!

PJEŠAČKA TRANSVERZALA ROBNE KUĆE RI

PJEŠAČKA TRANSVERZALA ROBNE KUĆE RIBudući da je bila sporna gradnja vrlo velike robne kuće, koja usred najstrože gradske jezgre prekoračuje glavnu prometnicu i zauzima prostor dva nasuprotna bloka, Kučan je pokušavao naći kompenzaciju za urbanističko nasilje koje su mu nametnuli.

Tražeći rješenje, poziva se na želju arhitekta Igora Emilija, najosjetljivijega zaštitnika riječke graditeljske baštine, da se stari grad čvršće poveže s lukom, od koje je odvojen nizovima historicističkih zgrada i brzim prometnicama. Stoga Kučan planira uvođenje privlačne "pješačke transverzale", koja bi usmjerila promet iz centra prema luci. S Korza, glavne uzdužne pješačke ulice, planira vanjski uspon pomičnim stubištem uz pročelje, do terase kavane na prvom katu južne strane zgrade. Odatle je put (nerealiziran) trebao širokom terasom i stubištem prelaziti preko Ulice Riva i spuštati se na samu obalu luke. Privlačna snaga Robne kuće Ri olakšala bi i usmjerila pješački luk od pločnika Korza preko prvog kata robne kuće do obale, tada zapostavljene šetnice, i otkriti zapostavljenu vizuru - ljepote luke. Htio je naročito naglasiti audio-vizualne efekte industrijskog ambijenta tada vrlo žive trgovačke luke.


Naselje Krnjevo

NASELJE KRNJEVO I "UNUTRAŠNJE ULICE"

NASELJE KRNJEVO I "UNUTRAŠNJE ULICE"Na Krnjevu je Kučan planirao i izgradnju novoga gradskog centra, zvaog Centar Zapad (ili Centar 3). Na temu ovoga naselja Kučan je i magistrirao. Tezu je nazvao Studija korištenja stambenog prostora stambenog naselja Krnjevo.

No posebno je razvio zamisao kompaktnih stambenih nizova s "unutrašnjim (ili stambenim) ulicama" i na tu je temu prijavio doktorsku disertaciju - Interna pješačka ulica kao generator kvalitete života u primjeru izgradnje stambenih nizova.

Naselje Krnjevo nije realizirano - osim dva stambena niza dovršena početkom 1980-ih - "plavi" i "crveni" - u kojima su predviđeni dućani ostali prazni, a lokali za servisne službe i vrtiće morali biti "preprojektirani" u stanove.

NASELJE KRNJEVO I NOVI URBANIZAMNASELJE KRNJEVO I NOVI URBANIZAM

Sedamdesetih godina urbanisti uviđaju manjkavosti modernog planiranja gradova i počinju se vraćati tradiciji. Novi pristup oblikovanju iznova se vraća na formiranje "pravih" ulica, a u socijalnom smislu razvija se osjetljivost za strukturu i potrebe "korisnika", stanara.

Krnjevo je planirano kao naselje za 22 000 (do 25 000) stanovnika i, za razliku od ranije uobičajenih naselja "spavaonica", trebalo je imati sve potrebne gradske sadržaje i postati "samodovoljan" grad - s vrtićima, osnovnim i srednjim školama, sportskim, kulturnim i trgovačkim objektima.


Telegrafsko-telefonski centar u Umagu

Telegrafsko-telefonski centar u UmaguKučan je od početka sedamdesetih do početka osamdesetih godina projektirao i vodio izgradnju brojnih TT centara (Opatija, Pula, Pazin, Kozala, Trsat, Crikvenica i neostvareni Osijek).

Posljednji je TT centar u Umagu (1982.), koji nije nalik nijednom ranijem centru, među kojima se i drugi uzajamno uglavnom veoma razlikuju. Kučan je osobno bio vrlo zadovoljan ovom zgradom, koja odražava neke od njegovih glavnih osobina - sklonost jednostavnosti, skladu, matematičkom rasteru i industrijskim materijalima.

Posljednji centar u nizu ujedno je među najzapaženijim, antologijskim Kučanovim djelima, a publiciran je u brojnim pregledima hrvatske i jugoslavenske arhitekture svoga doba.

© 2006 MUZEJ GRADA RIJEKE